








Balneum
Stockholm, Sweden
16 500 square metres
Housing
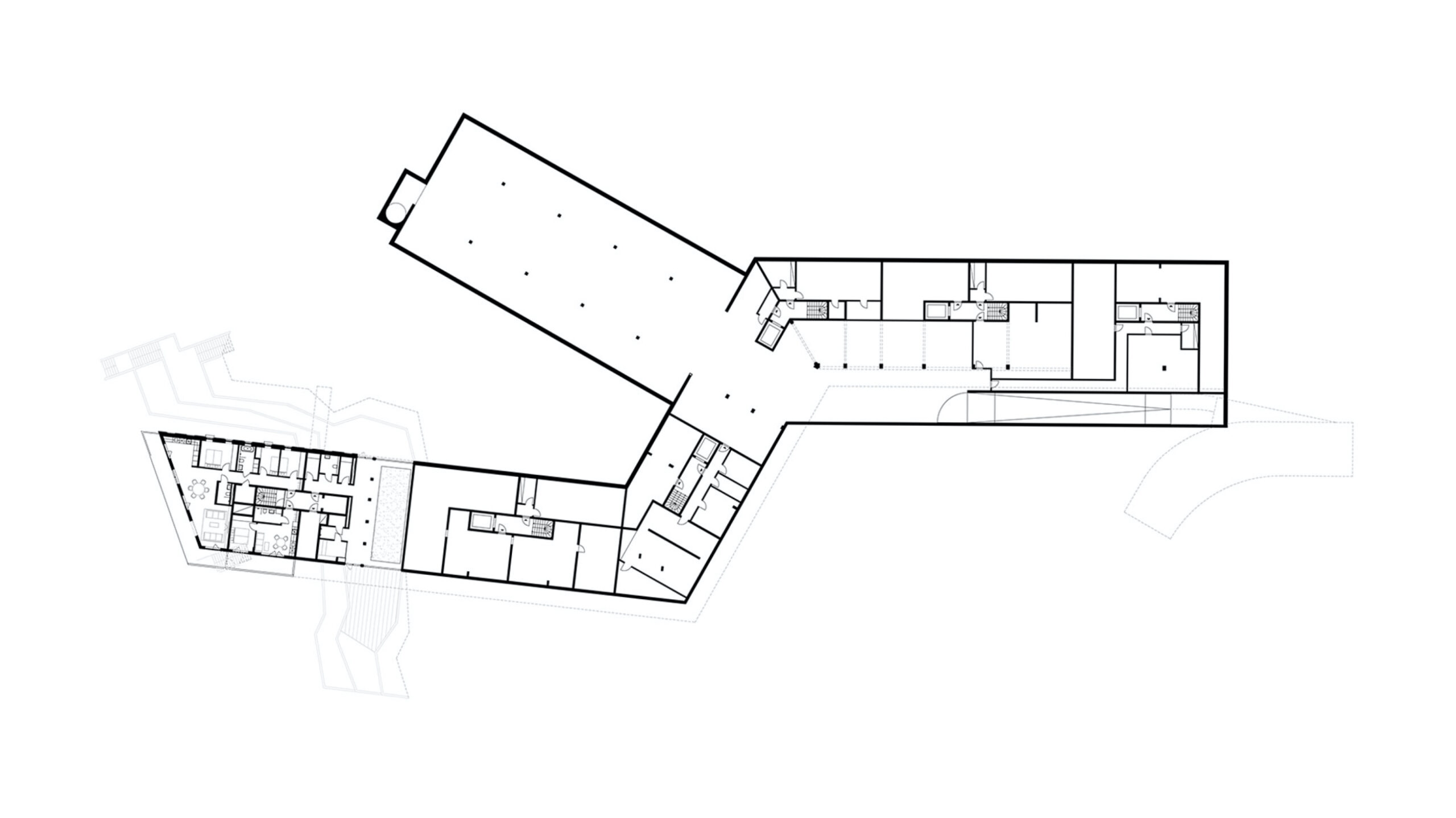
Balneum occupies a dramatic waterfront site at Gröndal Strand, on the edge of central Stockholm. The long, crooked building contains 134 apartments & is carefully positioned on the steep slope to create an expressive silhouette toward the water while reducing its perceived volume. Its placement, materiality, & facade design respond to the nearby Essingeleden bridge, which brings both noise & privacy challenges.
The east facade facing the bridge is more closed & solid, composed of three types of light-coloured matrix-cast concrete window modules. In contrast, the other facades are open, with generous glazing, warmer materials, & continuous balconies with custom top-mounted rails. Balneum’s dual identity, strong on one side & soft on the other, creates a striking presence on this unique and challenging site.